最新动态
- 01YUKEN油研电磁阀dsg-01-3c3-d24-n1-50价格,型号说明
- 02挖机液压泵维修,卡特挖机液压泵的维修步骤
- 03REXROTH力士乐AZPF,AZPB,AZPN系列齿轮泵性能参数及特征
- 04PARKER派克轴向柱塞泵PV028R1K1T1N-MMC价格,性能参数及使用说明
- 05日本东京计器柱塞泵P16V,P21V,P100V,P70V系列型号大全,性能参数
- 06台湾油昇yeoshe柱塞泵型号大全,特征及应用
- 07VIVOIL齿轮泵,VIVOIL液压齿轮泵/马达型号大全,特征及应用说明
- 08A3H泵有哪些型号? YUKEN油研A3H系列高压变量柱塞泵有哪些优势
- 09Caproni齿轮泵有哪些型号,这些型号的详细参数和特点是什么

行业新闻
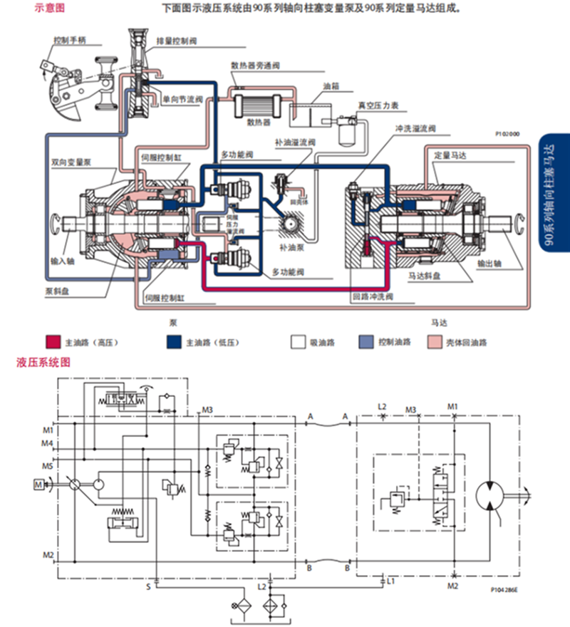
90 系列Danfoss丹佛斯变量泵及马达概况及铭牌说明
发布时间:2023-01-04 11:23:32 浏览次数:300990 系列Danfoss丹佛斯变量泵及马达概况:
Danfoss丹佛斯90系列变量泵可配合90系列马达或其他型式的液压产品组成液压驱动系统以实现流体的传动与控制。90系列产品主要应用于闭式系统。
90系列丹佛斯变量泵为紧凑、高功率密度液压元件。设计概念采用平行布置轴向柱塞及滑靴并通过一可倾斜式斜盘改变柱塞冲程进而实现泵排量改变。泵出口油液方向随斜盘方向变化而改变,从而实现马达输出轴正/反转向切换。
丹佛斯90系列泵上的集成补油泵为系统提供补充液压油,冷却油液及控制所需压力油。在泵后端盖上可选配一系列的辅助安装法兰以满足相关应用中串泵要求。多种控制方式可选以满足不同系统的特定控制要求(手动控制,电控及液控)。
丹佛斯90系列马达设计概念同样采用平行布置轴向柱塞/滑靴,斜盘为固定式或可变式。马达可实现双向转动;马达上可选配回路冲洗阀以实现闭式回路中工作液压油循环冷却及清洁过滤。
? 90系列产品-当今领域内最先进技术
? 7种排量泵可选
? 5种定排量马达可选
? 一种变量马达可选
? 安装方式:SAE标准法兰及插装式
? 高效率轴向柱塞设计
? 已证明的可靠性及高性能
? 紧凑,重量轻
? 全球销售及服务支持
Danfoss丹佛斯90系列轴向柱塞马达铭牌说明:

Danfoss丹佛斯90系列定量马达剖视图:

Danfoss丹佛斯90系列变量马达剖视图:

Danfoss丹佛斯90系列定量马达,插装式 剖视图:

Danfoss丹佛斯90系列轴向柱塞马达示意图:

相关新闻
东京计器中国有限公司,东京计器叶片泵型号如何看排量
2025-01-13 10:33:09
东京计器(原名东机美)叶片泵的型号众多,包括V10、V20、SQP(S)1、SQP(S)2 、SQP(S)3、SQP(S)4等系列,以及相应的双联和三联泵型号。对于东京计器叶片泵的型号,其排量通常不是直接通...
丹尼逊叶片泵型号规格大全,DENISON叶片泵样本
2025-01-06 14:52:14
丹尼逊(DENISON)叶片泵拥有多种型号规格,以下是其主要系列及部分型号的详细介绍,同时也提供了一个简化的DENISON叶片泵样本概览: 一、丹尼逊叶片泵主要系列 T6系列叶片泵 T6C单联泵:排量范围从003(约...
挖机液压泵维修,卡特挖机液压泵的维修步骤
2025-02-05 10:20:42
挖机液压泵,特别是卡特挖机液压泵,是挖掘机的重要部件,其维修步骤通常包括以下几个关键环节: 一、故障排查 检查液压油: 确保液压油没有泄漏,油箱内油面高度适中,不低于最低油标线。 检查油液是否清洁,避免灰尘、沙粒等杂...
![【bv1946官方网站下载地址
】液压元件[液压油泵,电磁阀]一站式服务平台](http://m.longbaobei.com/www/upload/20210127173032768281.png)




